2701 20th Street S, Saint Petersburg, FL 33712

$1,799,900
  • 2701 20th Street S, Saint Petersburg, FL 33712 Main Photo

2 Total Photos [Click to View All]

Active
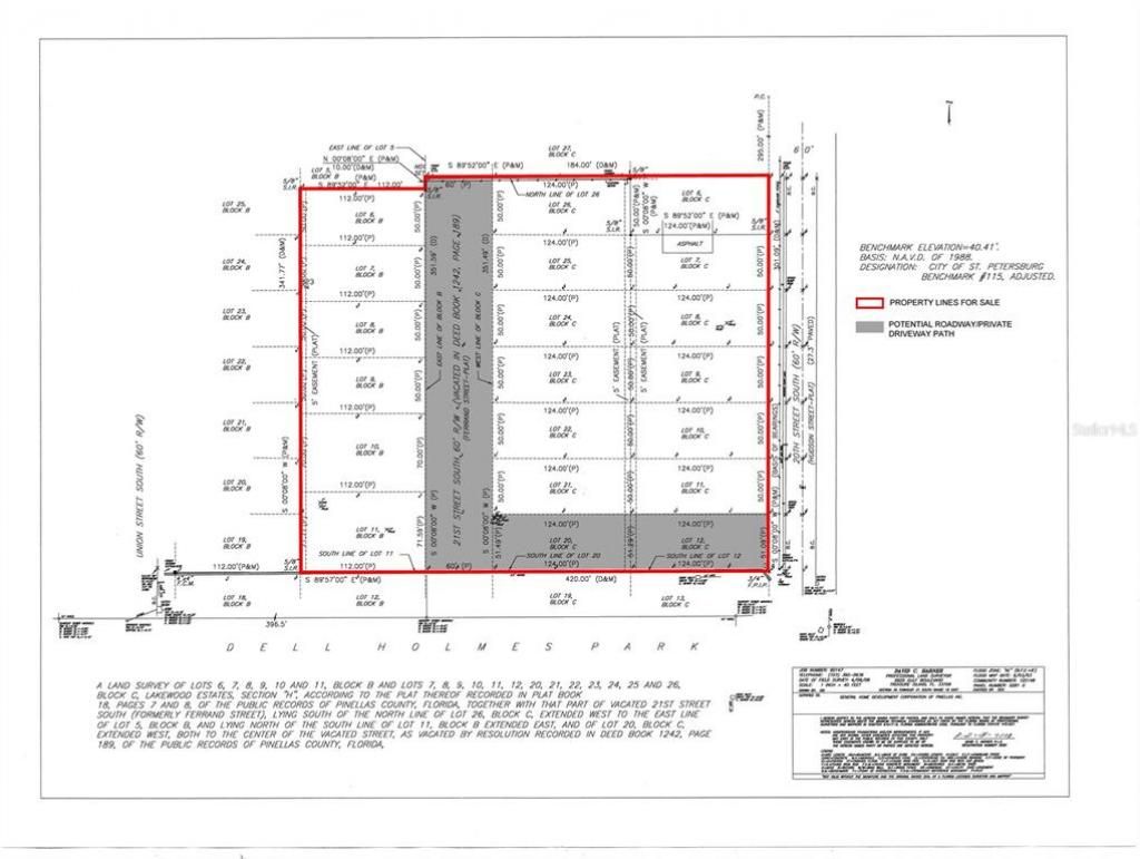
LOT SIZE 3.300 acres MLS#U8149214
STATUSActive PROPERTY TYPELand - Residential SUBDIVISIONLAKEWOOD ESTATES

Property Description

ENTIRE City block that will have up to 26 brand new contiguous homes as a community!! 6 of those homes/lots are already under construction on the far West side and not for sale. The balance of the property that is for sale is the already platted 20 lots and zoned for single family homes (Blk C, Lot 6 is included). Rare opportunity to have this size of a cluster in the City for all new construction. Interior road/driveway, water and sewer lines need to be added for services and access to the middle lots.

2701 20th Street S | MLS# U8149214

This land located at 2701 20th Street S, Saint Petersburg, FL 33712 is currently listed for sale with an asking price of $1,799,900. The property has approximately 3.30 Acres. Search Saint Petersburg real estate on www.dylanrealtor.com today.

Property Features

Property Type: Land - Residential
Lot Size: 3.30 Acres
Taxes: $5,359

Feature Descriptions

Days on Site: 1506
Directions: From 26th Ave. S., turn south on 20th St. to end of road. Property will be on the West side. The entire vacant field is the subject property.
Flood Zone Code: AE
Home Warranty Y/N: No
Listing Terms: Assumable, Cash, Conventional, Trade, Private Financing Available
Lot: Cleared, Cul-De-Sac, Flood Plain/Bottom Land, City Limits, Near Public Transit
Lot Dimensions: 3.3
Ownership: Fee Simple
Property Attached Y/N: No
Sewer: Public Sewer
Showing Instructions: Go Direct
Special Sale Provisions: None
Utilities: Cable Available, Electrical Nearby, Phone Available, Sewer Nearby, Water Nearby
Water: Public
Water Access Y/N: No
Water View: Lake

Listed By / Shown By

Listed By

Agency Name: GHD REALTY OF PINELLAS INC
Agency Contact: 727-321-5173

Shown By

Agent Name: Dylan Libadisos
Agent Phone: Cell: (808) 221-4533
Agency Title: Florida Executive Realty

IDX logo

Estimate Your Payment

Estimated Payment

$ 4,977.35 per month $4,005.80 Principal & Interest $446.58 Property Tax $524.97 Homeowner's Insurance

Change Payment Information

%
years/fixed
yearly
yearly (est.)
(Payments are an estimate and may vary by lender)
Disclaimer: All information deemed reliable but not guaranteed. All properties are subject to prior sale, change or withdrawal. Neither listing broker(s) or information provider(s) shall be responsible for any typographical errors, misinformation, misprints and shall be held totally harmless. Listing(s) information is provided for consumers personal, non-commercial use and may not be used for any purpose other than to identify prospective properties consumers may be interested in purchasing. Information on this site was last updated 03/04/2026. The listing information on this page last changed on 03/04/2026. The data relating to real estate for sale on this website comes in part from the Internet Data Exchange program of Delta Media Group MLS (last updated Wed 03/04/2026 5:58:47 AM EST) or Stellar MLS (last updated Wed 03/04/2026 1:58:45 AM EST). Real estate listings held by brokerage firms other than Florida Executive Realty may be marked with the Internet Data Exchange logo and detailed information about those properties will include the name of the listing broker(s) when required by the MLS. All rights reserved.

Listing data and photos distributed by MLSGRID
Member Participants (and their affiliated licensees, if applicable) shall indicate on their websites that IDX information is provided exclusively for consumers’ personal non-commercial use, that it may not be used for any purpose other than to identify prospective properties consumers may be interested in purchasing, that the data is deemed reliable but is not guaranteed by MLS GRID, and that the use of the MLS GRID Data may be subject to an end user license agreement prescribed by the Member Participant’s applicable MLS if any and as amended from time to time. MLS GRID may, at its discretion, require use of other disclaimers as necessary to protect Member Participant, and/or their MLS from liability.
Based on information submitted to the MLS GRID. All data is obtained from various sources and may not have been verified by broker or MLS GRID. Supplied Open House Information is subject to change without notice. All information should be independently reviewed and verified for accuracy. Properties may or may not be listed by the office/agent presenting the information.



Privacy Policy / DMCA Notice / ADA Accessibility

Login to My Homefinder

Pixel