1172 Seville Lane Ne, Saint Petersburg, FL 33704

$2,799,000
  • 1172 Seville Lane Ne, Saint Petersburg, FL 33704 Main Photo

44 Total Photos [Click to View All]

Active
BEDS5 BATHS4 full 1 partial SQUARE FEET4,111 MLS#TB8388046
STATUSActive PROPERTY TYPEResidential - Single Family SUBDIVISIONEDEN SHORES

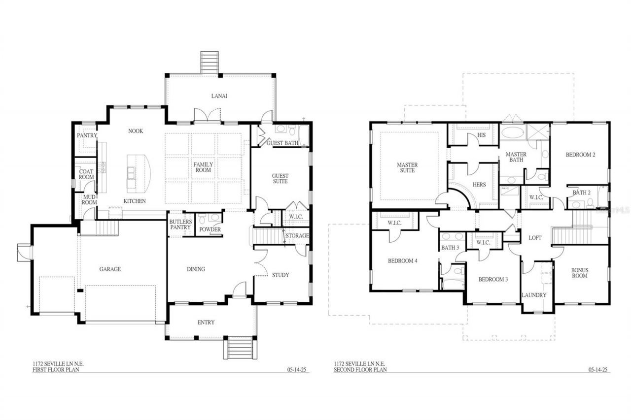
Property Description

Under Construction. Under Construction - Estimated Completion: July 2026. Introducing a spectacular new construction opportunity by one of Tampa Bay's most respected homebuilders - Mobley Homes Custom. Situated in the highly sought-after neighborhood of Snell Isle, this exceptional single-family residence is just moments from the tranquil waters of Tampa Bay and surrounded by multi-million dollar estates. Boasting 4,111 square feet of luxurious living space, this home is thoughtfully designed with 5 bedrooms, 4.5 bathrooms, a bonus room, formal dining room, a grand family room, a mudroom, and a 3-car attached garage - a truly comprehensive layout that meets the needs of today's discerning buyer. The heart of the home is a chef's dream kitchen, featuring a large island, Wolf & Sub-Zero appliances, quartz countertops, a walk-in pantry, and an elegant butler's pantry. French doors connect the expansive family room to the covered outdoor living area, perfect for seamless indoor-outdoor entertaining. Retreat to the sprawling primary suite, complete with dual walk-in closets and a spa-inspired bathroom featuring a soaking tub and walk-in shower. Designed to embrace the Florida lifestyle, the home also includes a heated in-ground pool and spa, ideal for year-round enjoyment. Additional premium features include:10' ceilings throughout, Impact-resistant windows, Engineered hardwood flooring, Low-voltage pre-wiring for a security system, Pavered driveway and porches. Every detail has been carefully curated for luxury, comfort, and lasting value. Photos and renderings are for illustrative purposes only and may not reflect final selections. A 10% deposit is required to secure your future home with Mobley Homes Custom, LLC. Please note: Images shown are of the same model; finishes and materials may vary based on the design book for this home. Built with peace of mind by Mobley Homes Custom LLC, Tampa Bay's premier builder. All homes are owned entirely by Mobley Homes Custom LLC. Mobley Homes Custom LLC does not build for third-party investors on their lots, and your home will be sold directly to you, ensuring a smooth and accountable process. Should any warranty needs arise, you'll work with the builder directly-not a one-off investor or empty LLC-providing confidence, long-term support, and superior quality. As a Buyer in the State of Florida, it is important to purchase your new home from the company that pulled the permit and built your home for you.

1172 Seville Lane Ne | MLS# TB8388046

This single family home located at 1172 Seville Lane Ne, Saint Petersburg, FL 33704 is currently listed for sale with an asking price of $2,799,000. This property was built in 2026 and has 5 bedrooms and 4 full and 1 partial baths with 4111 sq. ft. Seville Lane Ne is located in the EDEN SHORES subdivision. Search EDEN SHORES real estate on www.dylanrealtor.com today.

Property Features

Property Type: Residential - Single Family
Cooling: Central Air
Garage: 3 car attached
Heating: Central, Electric, Heat Pump, Zoned
Lot Size: 0.23 Acres
Roof Type: Metal
Stories: 2.0
Taxes: $14,542
Year Built: 2026

Amenities

Ceiling Fans(s)
Crown Molding
High Ceilings
PrimaryBedroom Upstairs
Solid Surface Counters
Solid Wood Cabinets
Thermostat
Walk-In Closet(s)
French Doors
Outdoor Kitchen
Rain Gutters

Feature Descriptions

Additional Rooms: Den/Library/Office, Formal Dining Room Separate, Great Room, Inside Utility, Loft
Appliances: Dishwasher, Disposal, Microwave, Range, Range Hood, Refrigerator
Builder: Mobley Homes Custom LLC
Community Features: Sidewalks, Street Lights
Days on Site: 288
Directions: Snell Isle Blvd NE to North on Cordova Blvd NE, East on Capri Way NW to North on Seville Lane NE
Disaster Mitigation: Hurricane Shutters/Windows
Exterior: Block, Cement Siding, Stucco, Frame, Wood Siding
Fireplace: Living Room
Fireplace Y/N: Yes
Flood Zone Code: AE
Flooring: Ceramic Tile, Hardwood
Foundation: Slab, Stem Wall
Garage Dimensions: 31x23
Home Warranty Y/N: No
Listing Terms: Cash, Conventional, FHA, VA Loan
Lot: Flood Insurance Required, FloodZone, City Limits, Landscaped, Sidewalk, Paved
Lot Dimensions: 0.23
Model: 1172 Sevilla Ln
Number of Pets: 10+
Other Equipment: Irrigation Equipment
Ownership: Fee Simple
Parking: Driveway, Garage Door Opener, On Street, Oversized
Parking Notes: Driveway, Garage Door Opener, On Street, Oversized
Patio/Porch: Covered, Front Porch, Rear Porch
Pets Allowed: Cats OK, Dogs OK, Yes
Pets Size: Extra Large (101+ Lbs.)
Pool: Gunite, In Ground
Property Attached Y/N: No
Property Sub-Type: Single Family Residence
Security: Security System Owned, Smoke Detector(s)
Sewer: Public Sewer
Showing Instructions: Appointment Only, ShowingTime
Special Sale Provisions: None
Swimming Pool: Yes
Utilities: BB/HS Internet Available, Cable Available, Electricity Connected, Public, Sewer Connected, Water Connected
Vegetation: Trees/Landscaped
Water: Public
Water Access Y/N: No
Windows: Double Pane Windows, Storm Window(s)

Room Sizes

Great Room: 19x20
Kitchen: 16x15
Dinette: 11x10
Bedroom 5: 12x12
Den: 13x12
Dining Room: 13x15
Bedroom 2: 13x14
Bedroom 3: 12x12
Bedroom 4: 15x14
Primary Bedroom: 17x19
Bonus Room: 12x13

Listed By / Shown By

Listed By

Agency Name: SMITH & ASSOCIATES REAL ESTATE
Agency Contact: 813-839-3800

Shown By

Agent Name: Dylan Libadisos
Agent Phone: Cell: (808) 221-4533
Agency Title: Florida Executive Realty

IDX logo

Estimate Your Payment

Estimated Payment

$ 8,257.57 per month $6,229.36 Principal & Interest $1,211.83 Property Tax $816.38 Homeowner's Insurance

Change Payment Information

%
years/fixed
yearly
yearly (est.)
(Payments are an estimate and may vary by lender)
Disclaimer: All information deemed reliable but not guaranteed. All properties are subject to prior sale, change or withdrawal. Neither listing broker(s) or information provider(s) shall be responsible for any typographical errors, misinformation, misprints and shall be held totally harmless. Listing(s) information is provided for consumers personal, non-commercial use and may not be used for any purpose other than to identify prospective properties consumers may be interested in purchasing. Information on this site was last updated 03/04/2026. The listing information on this page last changed on 03/04/2026. The data relating to real estate for sale on this website comes in part from the Internet Data Exchange program of Delta Media Group MLS (last updated Wed 03/04/2026 5:58:47 AM EST) or Stellar MLS (last updated Wed 03/04/2026 1:58:45 AM EST). Real estate listings held by brokerage firms other than Florida Executive Realty may be marked with the Internet Data Exchange logo and detailed information about those properties will include the name of the listing broker(s) when required by the MLS. All rights reserved.

Listing data and photos distributed by MLSGRID
Member Participants (and their affiliated licensees, if applicable) shall indicate on their websites that IDX information is provided exclusively for consumers’ personal non-commercial use, that it may not be used for any purpose other than to identify prospective properties consumers may be interested in purchasing, that the data is deemed reliable but is not guaranteed by MLS GRID, and that the use of the MLS GRID Data may be subject to an end user license agreement prescribed by the Member Participant’s applicable MLS if any and as amended from time to time. MLS GRID may, at its discretion, require use of other disclaimers as necessary to protect Member Participant, and/or their MLS from liability.
Based on information submitted to the MLS GRID. All data is obtained from various sources and may not have been verified by broker or MLS GRID. Supplied Open House Information is subject to change without notice. All information should be independently reviewed and verified for accuracy. Properties may or may not be listed by the office/agent presenting the information.



Privacy Policy / DMCA Notice / ADA Accessibility

Login to My Homefinder

Pixel